シティタワー駒沢大学ステーションコート
- お気に入り
- mail_outline 物件へのお問い合わせ
■田園都市線「駒沢大学」駅へ徒歩約1分!8階部分南東向きにつき採光良好!
リビング
中古マンション
- 価格
- 15,000 万円 pollローンシミュレーション
- 所在地
- 東京都世田谷区上馬3丁目
- 交通
-
東急田園都市線「三軒茶屋」 駅徒歩19分
東急田園都市線「桜新町」 駅徒歩24分
■田園都市線「駒沢大学」駅へ徒歩約1分!8階部分南東向きにつき採光良好!
■大切なペットと一緒に暮らせます(細則有り)
■ダブルオートロックシステム完備、床暖房・食洗器等々設備充実
■大切なペットと一緒に暮らせます(細則有り)
■ダブルオートロックシステム完備、床暖房・食洗器等々設備充実
- 担当
-
谷川 興斗
リビング
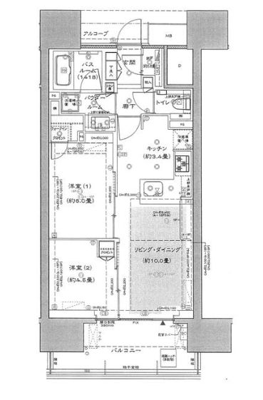
間取