イトーピア目黒青葉台
- お気に入り
- mail_outline 物件へのお問い合わせ
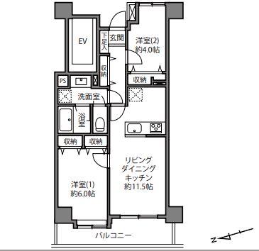
■東急田園都市線「池尻大橋」駅より徒歩10分 2LDKマンション
外観
中古マンション
- 価格
- 8,980 万円 pollローンシミュレーション
- 所在地
- 東京都目黒区青葉台4丁目
- 交通
-
京王電鉄井の頭線「神泉」 駅徒歩8分
東急田園都市線「池尻大橋」 駅徒歩10分
東急東横線「渋谷」 駅徒歩15分
■東急田園都市線「池尻大橋」駅より徒歩10分 2LDKマンション
■ペット飼育可(細則あり)、オートロック・宅配ボックス完備
■2022年9月リノベーション完了予定
■ペット飼育可(細則あり)、オートロック・宅配ボックス完備
■2022年9月リノベーション完了予定
- 担当
-
谷川 興斗
外観
間取