秀和目黒駅前レジデンス
- お気に入り
- mail_outline 物件へのお問い合わせ
■「目黒駅」徒歩4分の好立地!大規模ヴィンテージマンション!7階角部屋 通風・眺望良好!
外観
中古マンション
- 価格
- 7,980 万円 pollローンシミュレーション
- 所在地
- 東京都品川区上大崎3丁目
- 交通
-
山手線「目黒」 駅徒歩4分
東京地下鉄南北線「白金台」 駅徒歩10分
東急池上線「五反田」 駅徒歩14分
■「目黒駅」徒歩4分の好立地!大規模ヴィンテージマンション!7階角部屋 通風・眺望良好!
■再開発で益々便利になった目黒駅前
■令和7年11月中旬新規内装フルリノベーション完了予定
■再開発で益々便利になった目黒駅前
■令和7年11月中旬新規内装フルリノベーション完了予定
- 担当
-
谷川 興斗
外観
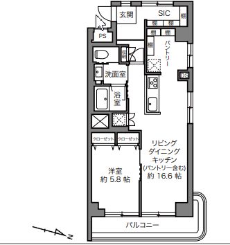
間取