東京サーハウスガーデンポート
- お気に入り
- mail_outline 物件へのお問い合わせ
■14階南西向きバルコニーのため、陽当り・通風・眺望良好、ペット飼育可能(細則有)
外観
中古マンション
- 価格
- 8,999 万円 pollローンシミュレーション
- 所在地
- 東京都大田区下丸子2丁目
- 交通
-
東急多摩川線「下丸子」 駅徒歩11分
東急多摩川線「武蔵新田」 駅徒歩14分
東急池上線「千鳥町」 駅徒歩20分
■14階南西向きバルコニーのため、陽当り・通風・眺望良好、ペット飼育可能(細則有)
■天然温泉や温水プール、フィットネスジム等、大規模マンションならではの充実した共用施設
■2025年10
月中旬リフォーム完了予定
■天然温泉や温水プール、フィットネスジム等、大規模マンションならではの充実した共用施設
■2025年10
月中旬リフォーム完了予定
- 担当
-
谷川 興斗
外観
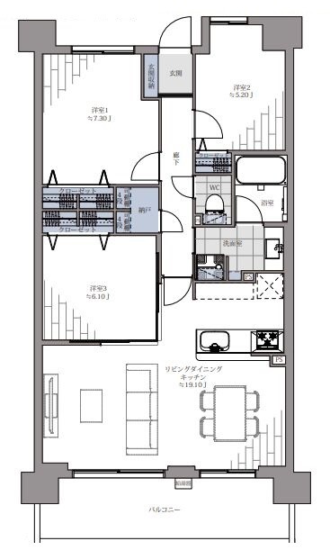
間取