ドルフ目黒
- お気に入り
- mail_outline 物件へのお問い合わせ
■6階南西向き住戸で日当たり良好
リビング
中古マンション
- 価格
- 8,180 万円 pollローンシミュレーション
- 所在地
- 東京都目黒区目黒本町3丁目
- 交通
-
東急東横線「学芸大学」 駅徒歩19分
東急目黒線「西小山」 駅徒歩13分
■6階南西向き住戸で日当たり良好
■月額4,100円の平置き駐車場の専用使用権付き、ペット飼育可能(細則有)
■2022年に大規模修繕工事実施済みの総戸数127戸ビッグコミュニティマンション
■月額4,100円の平置き駐車場の専用使用権付き、ペット飼育可能(細則有)
■2022年に大規模修繕工事実施済みの総戸数127戸ビッグコミュニティマンション
- 担当
-
谷川 興斗
リビング
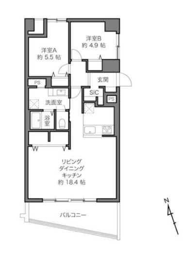
間取