エクレール五反田
- お気に入り
- mail_outline 物件へのお問い合わせ
■7階角・南向きで日当たり・眺望良好!
外観
中古マンション
- 価格
- 4,980 万円 pollローンシミュレーション
- 所在地
- 東京都品川区西五反田7丁目
- 交通
-
山手線「五反田」 駅徒歩8分
東急池上線「大崎広小路」 駅徒歩6分
東急目黒線「不動前」 駅徒歩9分
■7階角・南向きで日当たり・眺望良好!
■ペットと一緒に暮らせます♪(細則有)、複数路線利用可能な便利な立地
■令和7年12月下旬リノベーション完了予定
■ペットと一緒に暮らせます♪(細則有)、複数路線利用可能な便利な立地
■令和7年12月下旬リノベーション完了予定
- 担当
-
谷川 興斗
外観
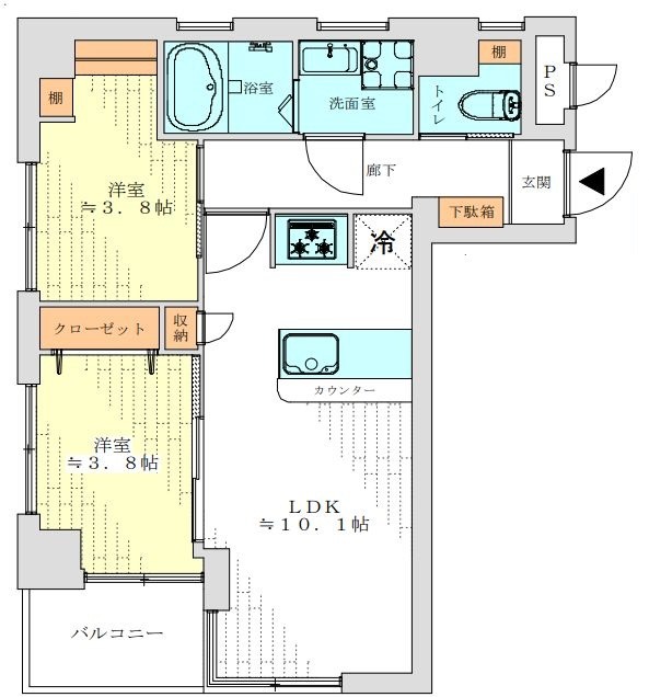
間取