菱和パレス島津山
- お気に入り
- mail_outline 物件へのお問い合わせ
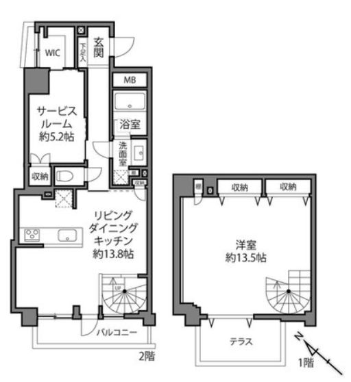
■1-2Fメゾネットタイプの新耐震適合マンション
外観
中古マンション
- 価格
- 13,980 万円 pollローンシミュレーション
- 所在地
- 東京都品川区東五反田1丁目
- 交通
-
東京都浅草線「五反田」 駅徒歩6分
東京都浅草線「高輪台」 駅徒歩5分
山手線「五反田」 駅徒歩7分
■1-2Fメゾネットタイプの新耐震適合マンション
■大切なペットと一緒に暮らせます(細則有)
■2025年12月リノベーション完了予定
■大切なペットと一緒に暮らせます(細則有)
■2025年12月リノベーション完了予定
- 担当
-
谷川 興斗
外観
間取