シティタワー武蔵小山
- お気に入り
- mail_outline 物件へのお問い合わせ
■最上階41階部分角部屋 眺望・陽当たり良好 !
外観
中古マンション
- 価格
- 35,800 万円 pollローンシミュレーション
- 所在地
- 東京都品川区小山3丁目
- 交通
-
東急目黒線「武蔵小山」 駅徒歩2分
東急目黒線「西小山」 駅徒歩13分
東急目黒線「不動前」 駅徒歩14分
■最上階41階部分角部屋 眺望・陽当たり良好 !
■スカイラウンジやオーナーズスイート、キッズルームなどタワーマンションならではの共用施設が揃います
■全506戸の大規模免震タワーマンション!
■スカイラウンジやオーナーズスイート、キッズルームなどタワーマンションならではの共用施設が揃います
■全506戸の大規模免震タワーマンション!
- 担当
-
谷川 興斗
外観
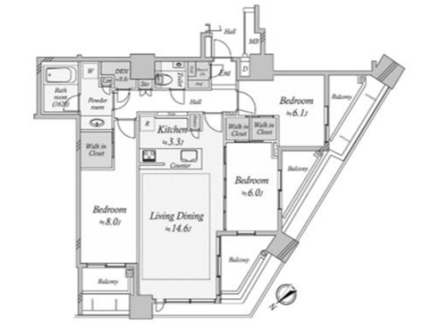
間取