エクラン西蒲田
- お気に入り
- mail_outline 物件へのお問い合わせ
■3階南向き角部屋住戸!
リビング
中古マンション
- 価格
- 6,290 万円 pollローンシミュレーション
- 所在地
- 東京都大田区西蒲田4丁目
- 交通
-
京浜東北・根岸線「蒲田」 駅徒歩12分
東急池上線「池上」 駅徒歩18分
京浜急行電鉄本線「京急蒲田」 駅徒歩24分
■3階南向き角部屋住戸!
■ ゆったり広々のバスルーム1616サイズ! 室内設備充実!
■2025年11月リノベーション完了 家具・エアコン付
■ ゆったり広々のバスルーム1616サイズ! 室内設備充実!
■2025年11月リノベーション完了 家具・エアコン付
- 担当
-
谷川 興斗
リビング
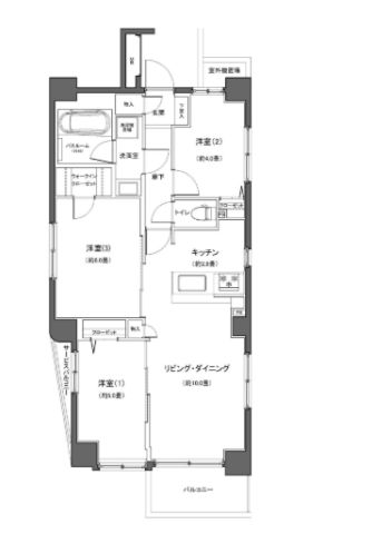
間取