コスモ千鳥町エクセラ
- お気に入り
- mail_outline 物件へのお問い合わせ
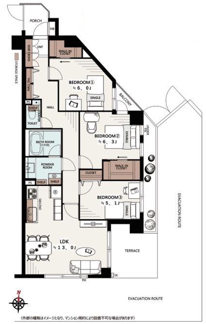
■1階南東向き角部屋 各部屋窓有 通風良好!
リビング
中古マンション
- 価格
- 7,680 万円 pollローンシミュレーション
- 所在地
- 東京都大田区千鳥1丁目
- 交通
-
東急池上線「池上」 駅徒歩11分
東急多摩川線「武蔵新田」 駅徒歩11分
■1階南東向き角部屋 各部屋窓有 通風良好!
■2020年3月大規模修繕工事実施済み
■2025年9月末リノベーション完了
■2020年3月大規模修繕工事実施済み
■2025年9月末リノベーション完了
- 担当
-
谷川 興斗
リビング
間取