マンション雅叙苑1号館
- お気に入り
- mail_outline 物件へのお問い合わせ
■JR山手線「目黒」駅徒歩7分 南西向き10階のお部屋 日当たり・通風・眺望良好
その他画像
中古マンション
- 価格
- 5,280 万円 pollローンシミュレーション
- 所在地
- 東京都品川区上大崎4丁目
- 交通
-
山手線「目黒」 駅徒歩7分
東急目黒線「不動前」 駅徒歩7分
東京都浅草線「五反田」 駅徒歩12分
■JR山手線「目黒」駅徒歩7分 南西向き10階のお部屋 日当たり・通風・眺望良好
■ペット飼育可能(細則有) 総戸数395戸のビッグコミュニティ
■2026年3月中旬フルリノベーション完了予定 全サッシ交換予定
■ペット飼育可能(細則有) 総戸数395戸のビッグコミュニティ
■2026年3月中旬フルリノベーション完了予定 全サッシ交換予定
- 担当
-
谷川 興斗
その他画像
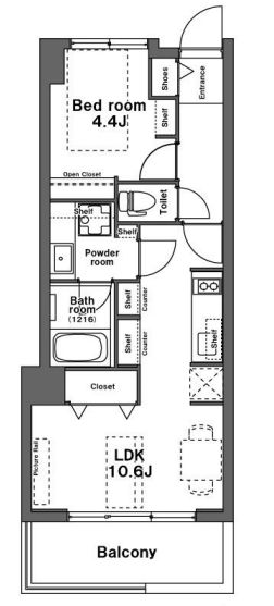
間取