シティインデックス武蔵小山
- お気に入り
- mail_outline 物件へのお問い合わせ
■14階建13階部分のお部屋、開放感のある眺望です!
リビング
中古マンション
- 価格
- 5,990 万円 pollローンシミュレーション
- 所在地
- 東京都品川区荏原6丁目
- 交通
-
東急池上線「荏原中延」 駅徒歩9分
東急大井町線「旗の台」 駅徒歩11分
東急目黒線「武蔵小山」 駅徒歩14分
■14階建13階部分のお部屋、開放感のある眺望です!
■犬・猫2匹まで飼育可(細則あり),2023年大規模修繕工事実施済み
■2025年10月リノベーション完了 マルチクローク新設等々
■犬・猫2匹まで飼育可(細則あり),2023年大規模修繕工事実施済み
■2025年10月リノベーション完了 マルチクローク新設等々
- 担当
-
谷川 興斗
リビング
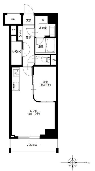
間取