アイディーコート二子玉川
- お気に入り
- mail_outline 物件へのお問い合わせ
■1階南西向きのお部屋!ペットと一緒に暮らせます♪(細則有)
リビング
中古マンション
- 価格
- 5,650 万円 pollローンシミュレーション
- 所在地
- 東京都世田谷区野毛3丁目
- 交通
-
東急大井町線「上野毛」 駅徒歩14分
東急田園都市線「二子玉川」 駅徒歩19分
東急大井町線「等々力」 駅徒歩18分
■1階南西向きのお部屋!ペットと一緒に暮らせます♪(細則有)
■2024年2月大規模修繕工事実施済み
■二重床・二重天井構造が採用されたお部屋,バス、トイレにリフォーム歴あり
■2024年2月大規模修繕工事実施済み
■二重床・二重天井構造が採用されたお部屋,バス、トイレにリフォーム歴あり
- 担当
-
谷川 興斗
リビング
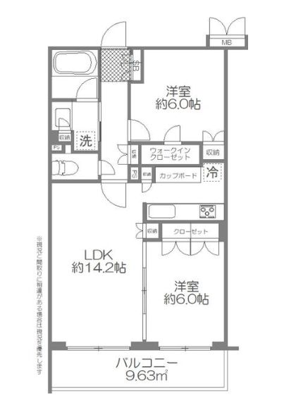
間取