パークタワー東京フロント
- お気に入り
- mail_outline 物件へのお問い合わせ
■『免震構造』タワーレジデンス!5階 南東向きにつき陽当たり・眺望良好
リビング
中古マンション
- 価格
- 13,500 万円 pollローンシミュレーション
- 所在地
- 東京都大田区蒲田4丁目
- 交通
-
京浜急行電鉄本線「京急蒲田」 駅徒歩2分
京浜東北・根岸線「蒲田」 駅徒歩7分
京浜急行電鉄本線「梅屋敷」 駅徒歩13分
■『免震構造』タワーレジデンス!5階 南東向きにつき陽当たり・眺望良好
■大切なペットと一緒に暮らせます(細則有)
■2026年2月中旬リノベーション完了 エアコン新設等々
■大切なペットと一緒に暮らせます(細則有)
■2026年2月中旬リノベーション完了 エアコン新設等々
- 担当
-
谷川 興斗
リビング
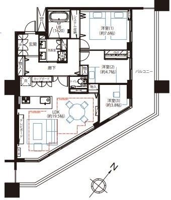
間取