セザール御殿山
- お気に入り
- mail_outline 物件へのお問い合わせ
■2階の3方向角住戸!複数路線利用可能な便利な立地
外観
中古マンション
- 価格
- 8,590 万円 pollローンシミュレーション
- 所在地
- 東京都品川区北品川5丁目
- 交通
-
山手線「大崎」 駅徒歩6分
山手線「五反田」 駅徒歩15分
東急池上線「大崎広小路」 駅徒歩15分
■2階の3方向角住戸!複数路線利用可能な便利な立地
■新耐震基準適合マンション、オートロック完備
■2026年4月上旬リノベーション完了予定
■新耐震基準適合マンション、オートロック完備
■2026年4月上旬リノベーション完了予定
- 担当
-
谷川 興斗
外観
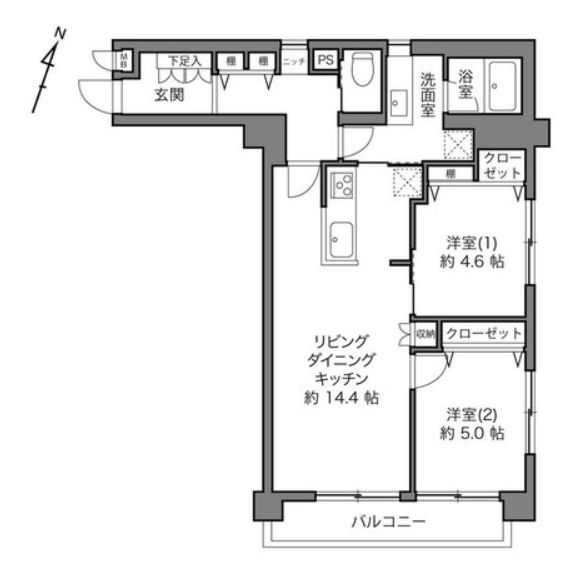
間取